Introduction
Ground remediation methods have been used for many years to improve ground conditions to enable development. Ground remediation has become increasingly common as industrialisation has caused rapid development of cities. Areas within cities, previously undeveloped due to adverse ground conditions, can now be remediated to enable development. Adverse ground conditions can include, but are not limited to, organic, loose, soft, liquefiable and compressible soils. Remediation methods can be used on flat and sloping sites. Sloping sites may be prone to slope instability and can require stabilisation. Ground remediation methods have also been used in areas where the soils are susceptible to liquefaction induced ground deformation. Christchurch, New Zealand, is a city where such remediation methods are being used for this and other purposes.
Stone columns have been used in Christchurch as a ground improvement method and have numerous applications for improving ground conditions, including slope stabilisation. Factors that can cause slope instability include cyclic loading (associated with earthquake loading) that can result in the generation of excess pore water pressures within the soils, which can adversely affect the shear strength of the soil. Stone columns are capable of mitigating the triggering of liquefaction by providing drainage (which helps prevent the build up of excess pore water pressures) and by increasing the stiffness of the soils, which mitigates the amount of shear strain occurring in the soils during cyclic loading. Stone columns are also capable of addressing slope stability issues such as landslide mitigation or stabilisation (Aboshi et al., 1979; Goughnour et al., 1991). Goughnour et al. (1991) state that slope instability can be improved by increasing the shear resistance of the soil along a potential slip surface by replacing or displacing the insitu soil. Improved drainage of pore water pressures can also be achieved by providing a more permeable gravel column within the slope, increasing the strength of the insitu soils and improving stability (Abramson, 2002; Deb et al., 2012). Mechanically the shear resistance of stone columns is dependent on the applied load, or normal stress, and the shear displacement at the location of the failure plane (Alfaro et al., 2009).
An initial geotechnical assessment of the site was undertaken by Fraser Thomas Ltd to characterise the subsurface conditions of the site, determine the suitability of the existing foundation systems and provide information for preliminary ground remediation design details. Stone columns were selected to remediate the soils underlying the eastern part of the site which were considered to be prone to liquefaction and slope instability (under seismic loading conditions).
Field Observations
This research investigates the use of stone column ground remediation to stabilise the slopes at Trafalgar Street, St Albans, Christchurch. St Albans Creek is located in close proximity to the site. The slopes at the site are the western low angle river bank slopes of St Albans Creek. The crest of the western bank of St Albans creek is generally located along the eastern site boundary, which generally extends in a south-easterly direction. The approximate location and extent of the crest of the western bank of St Albans Creek, in the vicinity of the subject site, is shown on Figure 1.

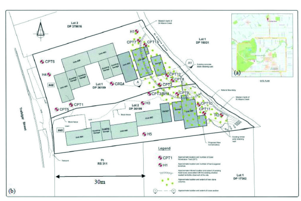
Figure 1: – (a) Location of study site in Christchurch (b) Site plan showing test locations, approximate inferred location of headscarp feature and associated shallow seated landslide. The approximate locations of the then proposed stone columns have also been illustrated.
The crest of the western bank of St Albans Creek is located a horizontal distance of between approximately 4.4 m and 8.8 m from the eastern edge of the footprint of the previously existing buildings. The western bank of St Albans Creek, in the vicinity of the subject site, is not retained and is up to approximately 1.75 m in vertical height. The topography immediately adjacent to the western bank of St Albans Creek is considered to be slightly to moderately sloping (5o-14o). Although, under normal circumstances, this topography would not be considered to be potentially unstable slope failure of the western bank of St Albans Creek has occurred.
The initial geotechnical assessment indicated that the slope failure at the site was inferred to have been caused by cyclic loading associated with the February 2011 earthquake, part of the Christchurch Earthquake Sequence (CES), which caused the generation of excess pore water pressures in the soils. This caused a significant reduction to the effective stress along the failure plane (inferred to be approximately 2.4 m below the ground surface) which resulted in the rotational slumping of the western river bank at the site.
The low angle western river bank slopes and the sites’ structures were significantly affected by lateral and vertical displacements of the shallow seated landslide, as shown in Figure 2. The free face provided no lateral confinement of the surficial soils in the area during liquefaction, resulting in lateral movement and deformation of the structures. In other locations around Christchurch the CES has led to extensive liquefaction induced land damage (Wotherspoon et al., 2015). The consequences of liquefaction include: slope instability as shear strength is lost; lateral spreading on slightly sloping ground; and settlement caused by reconsolidation of the liquefied soils (Boulanger and Idriss, 2006). The buildings within the eastern part of the site now require rebuilding due to the damage sustained during the slope failure.

Figure 2: Photos showing damage sustained to the existing buildings in the eastern part of the subject site
Slumping Failure Mechanism:
It should be noted that liquefaction induced lateral ground spreading, which is discussed in the Ministry of Business, Innovation and Employment (MBIE) guidelines ((MBIE), 2012), is normally defined as large scale lateral ground movement adjacent to a “free-face”. This type of lateral ground movement can affect gently sloping ground and can affect ground located hundreds of meters from the “free-face”. The slope failure discussed in this paper is not considered to be associated with “lateral ground spreading” but is more accurately described as a localised rotational slide or slumping (Rauch, 1997; Zhang et al., 2004). Zhang et al. (2004) comment that a slope is more prone to slump failure with increasing proximity to a free face, due to the presence of higher static shear stresses.
An existing concrete block retaining wall was located at the eastern end of the site. The existing retaining wall appears to have been subject to significant vertical and lateral displacement causing tilting. The rotation of the retaining wall and other structures located in close proximity to the river bank and the development of a circular headscarp feature, as shown in Figure 1, confirm a rotational slumping slope failure mechanism.
Research Aims:
Fraser Thomas Ltd have effectively mitigated the liquefaction hazard using stone columns in accordance with the recommendations of Part C of the MBIE guidelines. The aims of this research are to understand and confirm the geotechnical controls on the observed slope failure, to determine if adequate slope stabilisation has been achieved from installing stone columns (under static and seismic loading conditions) and to determine the future dynamic loading capacity of the site.
Geological Setting:
Christchurch is situated on the Canterbury Plains, on the eastern coast of the South Island, New Zealand. The Canterbury Plains largely comprise of a series of alluvial fans spread in a west to east direction, toward the coast. During previous interglacial periods, climatic conditions caused the eastward transgression of the Canterbury Plains forming the present shoreline. Post glacial fluvial channels and overbank sediments spread throughout Christchurch in a layer referred to as the Springston Formation. The eastern transgressional glacial channels have subsequently interfingered with marine sediments below Christchurch and offshore (Brown et al., 1992). As a result, Christchurch is founded on a complex, interlayered sequence of alluvial soils and marine sediments of Holocene age (Wissman et al., 2015). Many of Christchurch’s creeks and rivers, such as the Dudley and St Albans Creeks and Avon and Heathcote Rivers, although largely spring fed, are remnants of these glacial outwash channels. Whilst most of the Christchurch land mass has been drained (Brown and Weeber, 1992), the nature of the soils present has contributed to a precarious building substrate prone to liquefaction and slope instability.

Table 1: Generalised subsurface conditions underlying the site before and after stone column installation. Note stone column installation up to 5.95m deep.
METHODOLOGY
Site Characterisation
The initial field investigation undertaken by Fraser Thomas Ltd comprised a visual appraisal of the site, two Cone Penetration Tests (CPT), five hand augered boreholes and associated Dynamic Cone Penetrometer (DCP) scala tests and a topographic survey.
Four existing CPT probes and one machine borehole, understood to have been put down as part of the EQC “area wide Christchurch geotechnical investigations”, are also located at the site. For the purposes of this paper the CPT’s have been called CPT 1 to CPT 6 inclusive. The machine borehole has been labelled M1. The five hand augered boreholes have been labelled H1 to H5 inclusive. The locations of the test positions, existing head scarp and inferred landslide feature are shown in Figure 1. The results of the CPT probe and borehole investigation indicate that the surficial soils underlying the site are likely to comprise sediments of the Springston Formation of Holocene age and the groundwater level was inferred to be at a depth of approximately 1.1 m below ground level. This groundwater depth has been used for the various slope stability analysis conducted for this research.
Following the demolition of the existing buildings at the site an additional four CPT probes were put down to provide a baseline of the geotechnical properties prior to installation of the stone columns. The approximate locations of the designed stone columns are shown in Figure 1. The geotechnical properties determined from the CPT probes were converted into Mohr- Coulomb strength parameters (apparent cohesion (kPa) and friction angle (o)), using previous works provided by Carter and Bentley (1991) and Waltham (2009). The CPT probes used for the analyses are identified as CPT 7, CPT 8, CPT 9 and CPT 10, shown in Figure 1. The soil profile and geotechnical properties of the underlying soil before and after stone column installation are presented in Table 1. The results of the field investigations have been used to characterise the site and have also been used for the back analysis, slope stability analysis and psuedostatic analysis, for the slope profile A-A1, as shown in Figure 1. It should be noted that the CPT probe testing was undertaken before and after ground remediation in order to confirm the densification of the liquefiable soils.
Slope Failure Back Analysis:
In order to understand the geotechnical controls on the slope failure, a back analysis has been conducted for the slope profile A-A1. The back analysis has been conducted with Rocsciences 2D limit equilibrium software Slide version 7.0. The analysis has been undertaken to calculate the soil strength of the inferred liquefiable silty sands interbedded with sandy silts layer within the likely failure zone of the slope, encountered between 2.4 m and 5.6 m below ground level. It is understood that liquefaction and the observed slope failure occurred in response to the February 2011 earthquake event. The back analysis can be used to determine the soil strength parameters during failure of the slope at the site, in response to seismic loading associated with the February 2011 earthquake.
To identify the inferred liquefiable layer within the soil profile, an analysis has been undertaken using the computer programme CLiq to assess the theoretical liquefaction triggering potential of the underlying soils at the location of CPT 2 under Ultimate Limit State (ULS) seismic loading condition. It should be noted that liquefaction of the underlying sandy soils will significantly reduce the soil strength properties due to increases in pore water pressures and associated decreases in effective stress of liquefied soils. Therefore, reducing the liquefaction potential of the soils will also improve the stability of the slope.
Ground accelerations from an earthquake can be measured by Peak Ground Acceleration (PGA)’s. Earthquake modeling of future events is founded on past earthquake events and future predictions. Conditional median PGA’s for the previous Canterbury earthquakes have been used for the analysis. These PGAs have been determined by ((EQC), 2016) for various earthquake events. The conditional median PGA’s expected to have occurred at the subject site were 0.21 g, 0.38 g and 0.21 g, for the September 2010, February 2011 and June 2011 earthquake events respectively.
The back analysis model has been developed in the Slide software using the topographic survey data and geotechnical data during the site characterisation, using a circular failure surface. The back analysis model runs a range of soil strength parameters and determines which combinations of Mohr- Coulomb parameters, apparent cohesion (kPa) and friction angle (o), would lead to slope failure. The Bishop Limit Equilibrium Method (LEM) has been assessed during this analysis. The slope failure is inferred to have occurred during earthquake ground motions from the February 2011 earthquake event, PGA of 0.38 g. In order to replicate the worst case scenario this PGA value was input into both the horizontal and vertical Slide seismic load coefficient options.

Slope Stability Analysis:
In order to determine if adequate stabilisation from the installation of stone columns has been achieved, a theoretical slope stability analysis has been undertaken for the slope profile A-A1 after the stone column elements were installed. Hammouri et al. (2008) comment that slope geometry, soil properties, and the loads acting on the slope are critical parameters for the analysis of slope stability. There are many methods for assessing slope stability; of particular relevance are LEM and Finite Element Method (FEM).
LEM have been chosen for slope stability analysis in this research. The analysis output is a Factor of Safety (FoS), which is a calculated ratio between the driving and resisting force present on a user defined failure surface. The analysis is conducted by dividing the slide mass into smaller vertical slices (Hammouri et al., 2008). Abramson (2002) explains that the simplified Bishop (Bishop, 1955) and Janbu methods (Janbu, 1975) are the most popular methods because the FoS can be quickly calculated for most problems.
As noted by Hammouri et al. (2008) soil parameters are critical for slope stability assessment. Soil strength parameters have been calculated at the Trafalgar Street site using CPT probes before and after the installation of stone columns, using the tip cone resistance measurements, as recorded in Table 1. Slide was used to analyse slope stability following stone column installation (under static and seismic load conditions).
The design of the stone columns was generally undertaken in accordance with the recommendations of Part C of (MBIE, 2015). McMillan Civil were nominated as the contractor for installation. McMillan use a full displacement method that uses no vibration and a screw based installation method as described by Kupec (2014). This method was utilized to minimize the vibration to the neighboring residential sites.
Eight days following the installation of the stone columns, three CPT probes were undertaken to determine the improvement in the geotechnical properties of the soil within the treated area. For the purposes of this paper these CPTs are labelled CPT 11, CPT 12 and CPT 13. These material properties were input into Slide using the model from the initial topographic survey to determine the improvement in slope stability. The location and geotechnical properties of the post improvement CPT probes are shown in Figure 1 and Table 1 respectively.
Pseudostatic Analysis:
A pseudostatic analysis has been undertaken for the slope profile A-A1 at the site. The analysis has been conducted using a range of PGA’s. The PGA’s used for the analysis are based on previous CES earthquake events and future predictions. Slide 7.0 has been used to conduct the pseudostatic analysis.
Predicted future PGA measurements for the Alpine Fault, Hope Fault and Porters Pass Fault earthquakes events have also been used for the analysis. The PGA’s for the Alpine Fault and Hope Fault have been determined by Holden (2014) and the PGA for the Porters Pass Fault has been determined by Howard et al. (2003). It should be noted that these three faults are located more than 100 km from the subject site. Measured PGA values from the CES have been determined by ((EQC), 2016). The PGA’s used for the psuedostatic analyses have been modified to normalise the PGA values for a earthquake magnitude (Mw) 7.5 earthquake event using the magnitude scaling factor (MSF) proposed by (Idriss and Boulanger, 2008). The ULS design earthquake event of 0.35g at Mw 7.5 has also been assessed to determine the sites suitability for redevelopment. The worst case scenario for each earthquake event has been used by inputting the same PGA value in the horizontal and vertical Slide seismic load coefficient input options. The input parameters for the pseudostatic analyses are summarised in Table 2.

Table 2: Pseudostatic analysis input parameters
It was decided to assess the slope for rotational failure only, as this was the inferred mechanism which likely resulted in the observed slope failure. The Bishop Limit equilibrium method has been assessed during these analyses. The Bishop method is understood to be more suitable for analysis of rotational failures. It was also decided to test the yield acceleration of the slope at the subject site, which is the ground acceleration required to reduce the FoS to below 1.0. This was conducted by increasing the seismic load coefficient for the horizontal and vertical seismic loads until failure occurred and FoS of below 1.0 was achieved.

Figure 3: Rotational failure for Section A-A1 determined for the back analysis under seismic loading (February 2011 earthquake event).
Results
Slope Failure Back Analysis
A back analysis was performed on the slope profile A-A1 from the subject site, Figure 3. The assumed failure surface was within the inferred liquefiable layer. The liquefiable layer was determined using CLiq and was inferred to be located within the silty sands interbedded with sandy silts, at depths between approximately 2.4 m and 4.9 m below the ground surface (layer thickness of approximately 2.5 m), as illustrated on the strain plot of Figure 4. It should be noted that the small liquefiable layer between 1.7 m and 1.9 m has been excluded as it is understood to be cohesive soil and non-liquefiable. The back analysis conducted for the liquefiable layer yielded an effective friction angle of 20.6o and an apparent cohesion value of zero for the assumed layer under seismic loading conditions (using the medium PGA value calculated for the February 2011 earthquake), resulting in slope failure.

Figure 4: Theoretical liquefaction potential of the soils at the location of CPT 2 (under ULS loading).
Slope Stability Analysis:
In order to assess the theoretical slope stability (under static loading conditions) for the remediated ground a LEM analysis has been conducted using the Slide 7.0. The Slide analysis investigated rotational failure surfaces. The search for the lowest FoS from the rotational failures were analysed, which calculated the location of the critical failure surface for the failure mechanism determined in the back analysis, i.e. a shallow seated rotational failure. The limit equilibrium analysis used the Janbu and Bishop simplified methods to calculate the FoS, for rotational failure surfaces. The results of the slope stability analysis, following stone column ground improvements, are shown in Table 3.
Pseudostatic analysis:
The stability of the remediated ground has also been analysed under seismic loading conditions, using a pseudostatic analyses methodology. The FoS for each pseudostatic analysis scenario is presented in Table 4.
The modelling for the profile under the scenarios (displayed in Table 4) show that profile A-A1, with stone column ground improvement, is expected to remain stable under seismic loading associated with the potential future earthquake events (including the ULS design earthquake) based on the information gathered from the earthquake fault ruptures investigated. Additional slope stability modelling was conducted to obtain the seismic loading capacity of the site. The seismic load coefficient, inputted as peak ground accelerations, was increased until the slope failed (i.e. with a FoS below 1.0). The results show that the yield acceleration for the slope section A-A1 was 0.53 g (assuming Mw is 7.5).
DISCUSSION AND LIMITATIONS
Back Analysis
An initial geotechnical investigation and theoretical liquefaction analysis of the subsurface conditions determined that an underlying layer of silty sands interbedded with sandy silt layers (between 2.4 m and 4.9 m below ground surface) was likely to liquefy under seismic load conditions. The results of the back analysis showed the liquefiable soil layer had an effective friction angle of 20.6o and a cohesion value of zero. Background geotechnical soil strength parameters of the liquefiable layer, before stone column improvement, indicates that liquefiable soils likely had an effective friction angle of between 31-33o and a cohesion value of zero under static load conditions.
The results of the back analysis confirmed that seismic loading from the February 2011 earthquake event caused the generation of excess pore water pressures and a decrease in the effective stress within the silty sands interbedded with sandy silt soils, which triggered a shallow seated landslide to occur at the site.The results of the back analysis confirm the initial findings from the Fraser Thomas geotechnical investigation. The failure surface is inferred to be located at a depth ranging between approximately 2.4 m and 3.15 m below the existing ground surface, as shown in Figure 3. The reduced soil strength parameters obtained during the back analysis are consistent with previous understanding of soil properties during liquefaction as described by Idriss and Boulanger (2008). The back analysis determined the geotechnical controls and material properties of the slope failure and the inferred depth of failure. This has provided a baseline of the sub-surface conditions, under seismic loading, which require remediation to enable redevelopment. This investigation was simplified to enable two dimensional analyses with a simplified soil profile and soil strength parameters.

Table 3: Calculated minimum factor of safety values for Section A-A1 (post stone column installation).
Slope Stability Analysis
Results from the LEM slope stability analysis undertaken for cross section A-A1 obtained FoS values between 2.85 and 2.97. Traditionally, if a theoretical FoS value of 1.5 can be achieved for the analysis, then the slope is considered to be stable under static conditions. The results confirmed that the site is stable against rotational failures following ground improvement, under static conditions. Translational slides along planar surfaces were not investigated as the slope is more susceptible to rotational/slumping failure, due to its proximity to the free face of St Albans Creek (Zhang et al., 2004).
The stability of the slope may be greater than the results suggest due to the improvement in the resisting force provided by the stone column. This improvement has resulted from the inferred increase in the soil’s geotechnical strength properties, between elements, following stone column installation, as a result of soil densification and reinforcement. Adalier and Elgamal (2004) describe that stone columns densify and reinforce the surrounding soils during construction and provide a stiffened soil matrix that can restrict shear deformation. This has occurred at the site resulting in stabilisation and resilience of the slope to lateral movements. The improved soil strength will also provide increased shear resistance along a potential failure surface, as described by Goughnour et al. (1991). Additional resistance to slope instability has also been provided by the stone columns by way of the provision of lateral confinement of the soils between the elements, which increases the soil stiffness, and the provision of drainage paths. These findings are similar to those of Abramson (2002), (Adalier and Elgamal, 2004) and Deb et al. (2012). These improvements have not been quantified or included in the theoretical slope stability analyses. If additional works were to be conducted these improvements could be investigated.

Table 4: Pseudostatic analysis results for Section A- A1
It should be noted that the ground improvement quantification has only been assessed using the soil strength improvement of the soils between the stone column elements in the treatment area and excludes the addition of the stone columns themselves. An average stone column area replacement of 20% was achieved within the treatment zone, i.e. 20% of the soils now comprise stone column material, to a maximum depth of 5.95 m below the existing ground surface. The slope is inferred to have had additional improvement in slope stability from the addition of stone columns added to the site. The additional resistance to slope instability provided by the physical presence of the stone columns has also has been excluded in the slope stability and pseudostatic analyses; however, could be included in additional works. Given that the resistance to slope instability provided by the stone column ground improvement has not been considered in the slope stability analyses reported herein, it is the author’s opinion that the results of the slope stability analyses are conservative.

Pseudostatic Analysis
Results from the pseudostatic analysis obtained FoS values of between 1.28 and 2.21. This was based on the PGA values from the previous and predicted earthquake ground accelerations for the area. These results confirm that stabilisation of the slope has been adequately achieved under seismic loading. Improved shear strength soil parameters between elements following stone column installation resulted in the sub surface conditions being more resilient to slope instability under seismic loading. It should be noted that the pseudostatic analysis calculates stability based on an instantaneous seismic load, as inputted horizontally and vertically for peak ground acceleration. Seismic loading is cyclic and will have varying amplitude and duration dependent of depth, location, magnitude and nature of the source. For this reason the pseudostatic analysis is considered to be approximate only and subject to limitations of these factors. It should also be noted that the analysis does not take into consideration increases in pore water pressure and the corresponding decreases in the effective stress of soil strength properties providing additional limitations, the soil strength parameters could be reduced to account for the decrease in effective stress.
A yield acceleration PGA was calculated for the site to determine the seismic loading capacity of the slope following ground improvement with stone columns. This yield acceleration excluded any static shear stresses that may be present at the site following redevelopment. It is recommended that further analysis is conducted when the loads and proposed locations of the new structures are known. The results showed that the yield acceleration for the slope section A-A1 is 0.53 g (assuming a Mw of 7.5). The calculated yield acceleration (PGA) indicates that the ground improved site can withstand a design earthquake event equivalent to approximately 1.51 times the seismic loading amount for a ULS design earthquake event.
Conclusions
This research assesses the effectiveness of stone columns for slope stabilisation under static and dynamic loading conditions. To enable redevelopment of complex sites subject to adverse ground conditions, a range of ground remediation methods are available, dependent on the site characteristics. At Trafalgar Street stone columns were selected to remediate the sub soils where mitigation of liquefaction and slope stabilisation were required. In order to effectively remediate the slope the failure surface had to be adequately stabilised.
The geotechnical controls of the initial slope failure were determined using a combination of geotechnical testing, topographic survey, theoretical liquefaction potential software and slope stability software. These tools can be used to analyse other slope failures in Christchurch, where slope failure of this nature has occurred. To determine whether adequate slope stabilisation had been achieved by stone column ground remediation works, slope stability analyses have been undertaken. The soil strength inputs for the analyses were calculated using the tip resistance data obtained by CPT probe testing, conducted between the stone column elements within the treatment area. The slope stability analyses undertaken for static and seismic loadings provided verification that adequate ground improvement had been achieved so as to mitigate the risk of future slope instability occurring under static and seismic load conditions and also determined the capability of the site.
The results of this research illustrate that stone columns have been effectively used to stabilise the slope at Trafalgar Street and enable redevelopment of the site. This research only concerned testing one cross section to evaluate the effectiveness of stone columns for slope stabilisation. I